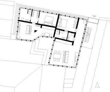
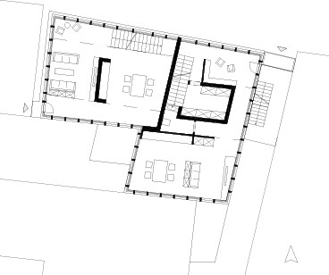
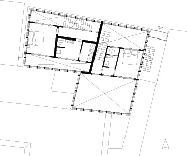
Auf einem prominenten Grundstück im Zentrum von Aarhus, Dänemark soll ein Mehrfamilienhaus entstehen. Das Grundstück ist umgeben von 4-stöckigen Gebäuden. Einzig die Nordfront ist zur Straße geöffnet.
Projektziele:


Tageslicht - Geschosshöhe - Analyse


75 m²

150 m²

EG 100 m² | 2-geschossig

OG 100 m² | 2-geschossig